西平房产网
新房
二手房
租房
厂房
首页
团购
新房
看房团
问答
资讯
二手房
租房
一手房
小区
当前位置:
首页
二手房详情
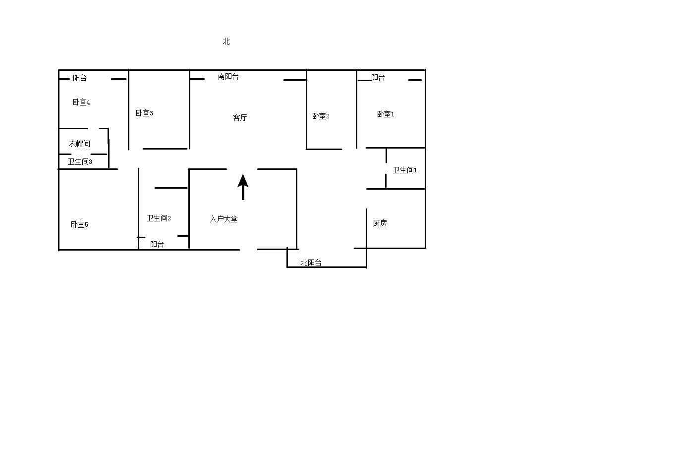
【城西大平层297平】
发布时间: 2025-12-17 ( 前天 18:03更新 )
浏览次数: 11
二手房基本信息
售价:
170
万元
户型:
5室3厅3卫
面积:
297.00㎡
装修:
毛坯
楼层:
低层/11层
朝向:
朝南
年代:
年代不详
地址:
地址不详
详情描述
一梯一户,院子大,采光好,大平层
温馨提示:
本网站所有图片和资料由开发商或个人提供,不做合同要约,资料图片可能与实际有一定出入,仅供参考,请以实际为准。本网站不得发布虚假房源信息、不得发布虚假房源广告;不得侵犯任何第三方的合法权益。
金楚楚
经纪人
18300777325
联系我时请说是在西平房产网看到的
微信扫码联系
TA的推荐
亚龙湾这套优质房单价3600
3室2厅2卫
129.00㎡
47万元
城西大平层297平
5室3厅3卫
297.00㎡
170万元
御都福邸四房带院,送车位储藏室
4室2厅2卫
132.00㎡
83万元
人民医院附近!步梯二楼23万
2室1厅1卫
102.00㎡
23万元
电梯三房38万!学校旁
3室2厅2卫
121.00㎡
38万元